Salamander BluEvolution 92
Cea mai performantă fereastră
Caracteristici
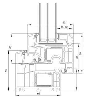
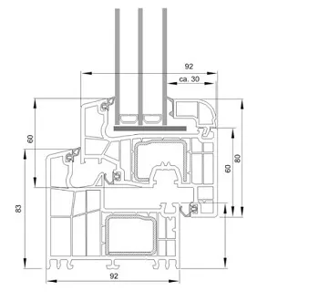
- Adâncime de construcţie de 92 mm
- 6 camere de termoizolare de mari dimensiuni – profil fabricat exclusiv in Germania
- Armatura din oţel zincat de 2 mm
- Sistem de etanşeizare cu TREI garnituri, a 3a garnitura fiind de plastic dur, in comparație cu cea de Gumă de la BluEvolution82 sau de la Gealan S9000.
- Coeficient de transfer termic de pana la 0,65 W/m2K, în funcţie de geamul folosit, doar in varianta de tripan.
La dezvoltarea sistemului BluEvolution 92, o atenție specială a fost acordată coeficientului de transfer termic al profilelor. A treia garnitură specifică ferestrelor de top, cu un coeficient termic foarte scazut, dedicat caselor pasive, la acest profil a fost facută din plastic dur în comparație cu cea din guma folosita de marea majoritate a profilelor cu 3 garnituri, făcându-l mai greu de prelucrat pe utilaje uzuale, astfel că acest profil cere sa fie prelucrat doar de catre firme specializate și dotate cu aparatură de ultimă generație.
Rezultatul formei profilului, cât și apariția acestei garnituri de pvc dur, îi conferă o rigiditate foarte mare la încovoiere cu armăturilor standard, ceea ce constituie un alt avantaj în ceea ce privește stabilitatea profilului. Astfel, nu mai există obstacole în calea realizării elementelor de mari dimensiuni, iar firma producătoare de ferestre poate oferi clienților ferestre de mari dimensiuni, chiar dacă se folosește geam tripan.
- Înălțimea maximă a elementelor pâna la 2500mm.
- Se preteaza foarte bine si la vitrine comerciale desparțite de montanți – montanți de 116mm.
- Rigidizările stabile din oțel asigură o rezistență ridicată la încovoiere și permit construirea unor ferestre de mari dimensiuni.
Solicită o ofertă de preț ONLINE
Termopane nZEB se angajează să ofere produse de tâmplărie de calitate superioară, fabricate cu cele mai noi tehnologii din industrie.
Consultanții Termopane nZEB te vor ajuta să alegi materialul potrivit, cele mai eficiente sisteme de culisare sau deschidere și îți vor oferi toate detaliile de care ai nevoie pentru a face alegerea potrivită.
























